T. 01452 750 409
×

book an appointment

Lorem ipsum dolor sit amet, consectetur adipiscing elit, sed do eiusmod tempor incididunt ut labore et dolore magna aliqua.



×

Kitch Living Direct
Unit B2
Churcham Business Park
Churcham
Gloucester
Gloucestershire
GL2 8AX

T. 01452 750 409

design & installation

Our Design Service

Designing your dream kitchen is as important to us as it is to you. That is why our experienced design team tailors each design to your lifestyle and needs. Any project big or small will be treated with the exact same amount of care and dedication and we work with you from initial concept to final kitchen design.

Our designs are provided as high-resolution rendered images, giving you a true sense of how your kitchen will look once installed in your kitchen space. Every aspect of your new kitchen will be carefully analysed, making sure it makes the most use of functionality, space, and storage. We can also suggest colour schemes and details to ensure that your kitchen stands out from the rest, and complements your personal taste. 

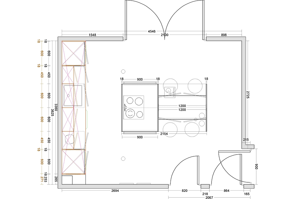
The below is an example of a modest kitchen design that required some design flare and engineering to achieve the customer's vision - a sleek and modern design for his converted kitchen/dining space including an island, without breaking the bank. This was achieved using crisp white J-handle gloss doors, and a contrasting Fenix Nero Ingo worktop. The island was designed as both a cooking space and a dining table. Waterfall Fenix end panels gave a sense of quality usually associated with solid worktops but at a fraction of the cost. Our customer was thrilled with the end result and gave us a 5-star google review.

Our Installation Service

Here at KitchLiving Direct, we understand that your kitchen is only as good as the fit. That’s why we only use our in-house team of professional kitchen fitters, that have the same exceptionally high standards and attention to detail as our design and manufacture staff. Our friendly fitting team is professionally approved and there to ensure that your kitchen gets fitted as efficiently as possible and with the least amount of fuss. 

KitchLiving Direct also offers a fully project-managed installation service, including comprehensive building work and fully certified plumbing and electrical services if required. Please ask our team about your installation requirements, as we are at your service.

For your peace of mind

All of our carpenters are City and Guild NVQ level 2 and above qualified. Our Electricians are fully up to date with the latest wiring regulations, and City and Guild NVQ level 3 qualified. Our plumbers are gas safe, and WRAS registered. We also have plumbers that are members of the Guild of Master Craftsmen. All of our kitchens are made in the UK and all carcasses are made using high-quality German components. We also offer a 25-year guarantee on our cabinetry.